Client
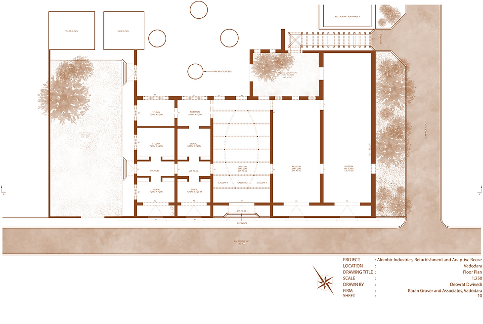
Alembic Industries
Location
Vadodara
Material
Masonry with lime plaster
Project Brief
Alembic Industries is 92 acres of industrial campus in the heart of Vadodara established in 1907 and growing ever since. The scope of products manufactured over these years range from Yera glassware to tinctures, spirits, dry ice, ethyl chloride, carbon dioxide, etc. However, over this span of a hundred and ten years various buildings have been rendered useless due to the ever-changing nature of industrial production technology. This urged the clients to call for a new master plan for the entire campus which intends to convert it into a corporate hub inclusive of a few office buildings, manufacturing units, retail units, and recreational facilities. The new master -planning of the campus is being carried out by BDP. Khandekar, an architectural practice from the Netherlands. Also due to the technological advancements, the industry campus houses a lot of obsolete machinery which when looked at in a sensitive manner portrays a chronological timeline of Alembic Industries. This notion led the clients to feel the requirement of a museum within the industry campus to display the whole history of the industry. The master plan marks the building in highlight as a recreational block which includes a museum, artist studios, and exhibition area in the first phase of implementation. The further phases of implementation will encompass a restaurant, a gym, and a few retail outlets. Mr. Chirayu Amin, the owner, and co-founder of Alembic Industries have commissioned Karan Grover and Associates as the architectural firm for the Alembic Museum, My Space Studios, and the further phases of the recreational hub. The functional distribution for the reuse of the building in highlight is as follows:
-
Block 1 and Block 2 - Alembic Museum (Permanent Display)
-
Block 3 - Exhibition for the Studios (Permanent Display)
-
Block 4 and Block 5 - Space Studios

Challenge
The nature of my involvement in the ongoing project was to develop a strategy for the reuse of the five building blocks as follows:
-
Preparing a set of renderings according to the first proposal presented to the client.
-
Skylight Design proposal in the exiting refurbished trusses of blocks 1,2,4, and 5.
-
Attending client meetings.
-
Incorporating the changes in the first design proposal in accordance with the client meeting held on 11/05/2017, presided over by Ar. Karan Grover.
-
Site visits with the site engineer for a better understanding of the existing building and to solve the onsite problems.
-
Interaction with structural consultants for the refurbishment of the existing trusses, integrating the new skylight design, and developing a steel lintel design for making wall cutouts.
-
Designing the Exhibition Space in Block 3 to be presented in the second proposal. The intent was to develop a spatial distribution for the exhibition space by only providing roofing which was in the character of the other 4 blocks but still marked it as the highlighted space.
-
Involvement in making the bill of quantities.
-
Produced a set of presentation drawings according to all the design decisions taken during the period of my internship.

Exploration

Skylight Design #1



Skylight Design #2











